Tenant Login Owner Login

2315-6 Catawba Valley Blvd.

Available Now | Retail/Office/Warehouse | $5.50/NNN

2315 Catawba Valley Blvd SE (Unit 6), Hickory, NC 28602

Price
$5.50
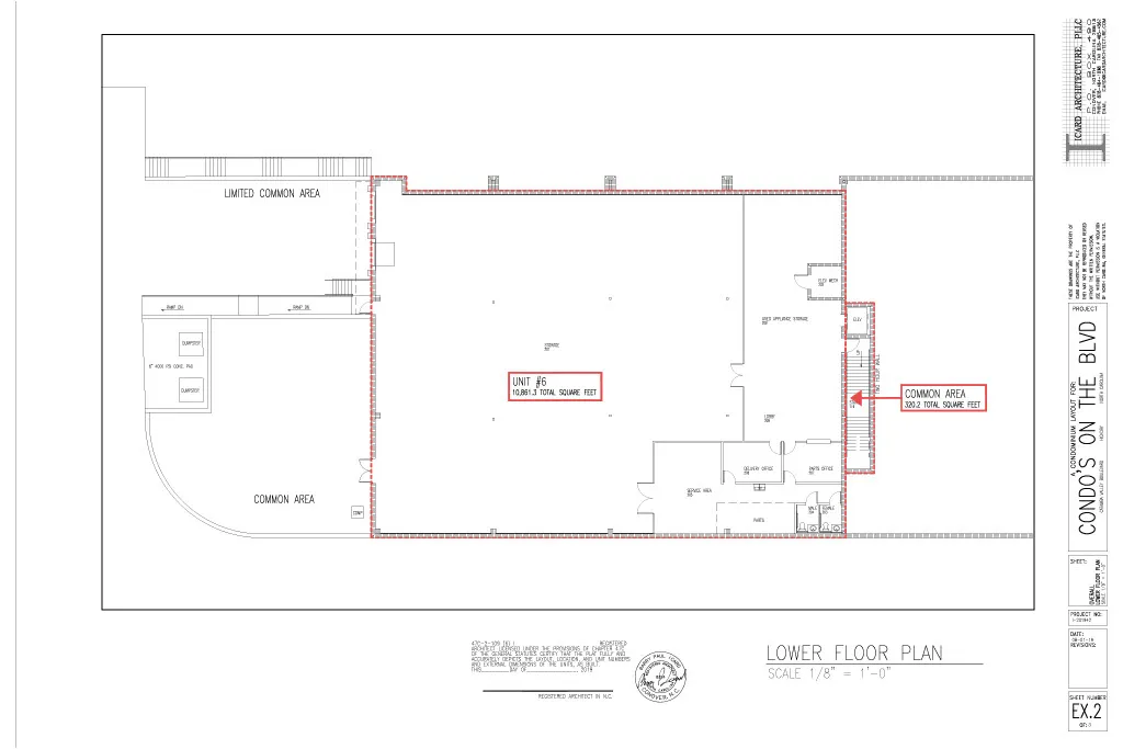
Square Footage
10862
Zoning
C3
Pin
371112865793
Category
Lease
Type
Office, Industrial, Retail

This 10,862 square foot retail, office, and warehouse space is available for immediate occupancy, perfect for a variety of commercial uses. Supporting efficient loading and storage operations, the property features two 8’x9’ dock doors and 11-foot clear ceilings. The facility is well-suited for light industrial or service-oriented tenants with its 3-phase power (208/120). The office area includes HVAC for comfort, while the warehouse is serviced by electric unit heaters. A sprinkler system and security system are already in place, providing added safety and peace of mind.


Property Details

Construction Date
1999
Construction Type
Concrete Block
Condition
Good
Property Size (Acres)
2.60
Dimensions
None

Features

Lighting Type
LED
Ceiling Height
11'
Loading Dock
Two dock doors (8'x9')
Parking
Paved, spaces

Utilities

Power
Duke Energy
Water
City of Hickory
Sewer
City of Hickory

*The information presented here is provided as is, without warranty of any kind. Neither the administrators of this site nor Boyd & Hassell Industrial and Commercial Properties, Inc. assume any liability for errors or omissions.
© 2026 Copyrighted by BHICP
Privacy Policy - Terms of Service
Website Development by Gryphos Creative Agency